Product list
- Electronic truck scale
- · 30 tons of electronic loadom
- · 60 tons of electronic loadom
- · 80 tons of electronic loadom
- · 100 tons of electronic loado
- · The explosion-proof automobi
- · 120 tons of electronic loado
- · 150 tons of electronic loado
- · Unattended electronic truck
- · Digital electronic truck sca
- Electronic ground
- · 1 tons of electronic ground
- · 5 tons of electronic ground
- · 10 tons of electronic ground
- · Explosion proof electronic g
- · All stainless steel ground
- · Tape printing electronic bal
- · Buffer type electronic balan
- · Ultra low single small scale
- · Double electronic loadometer
- Electronic scales
- · 60kg electronic platform
- · 100kg electronic platform
- · 150kg electronic platform
- · 300kg electronic platform
- · Tape printing electronic sca
- · Waterproof electronic scales
- · The valuation of electronic
- · Mobile electronic platform s
- Electronic Hanging Scale
- · At high temperature electron
- · Wireless intelligent electro
- · Open electronic steelyard
- Forklift truck scale
- · Electronic forklift scale
- Electronic balance
- · Electronic balance
News center
Contact us
Company Add: No. 124, Group 1, Eighth Bridge, Wangjiaxu, Zhelin Town, Fengxian District, Shanghai
Tel: +86-21-64365955
Fax: +86-21-64360688
Service hotline: 400-021-8108
P.C.: 201415
Detail
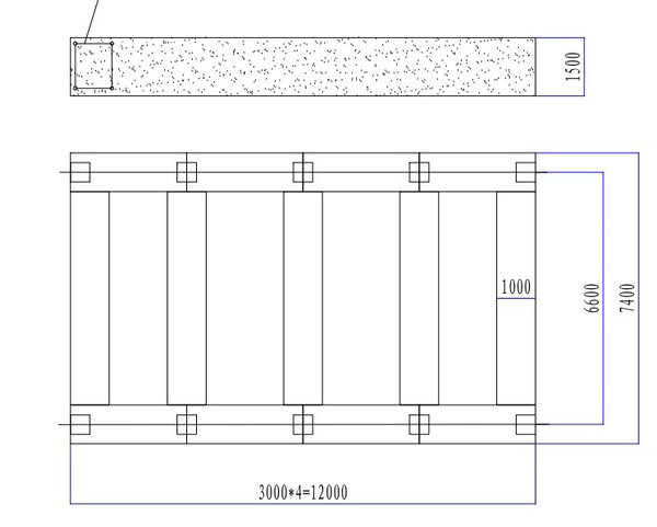
Suzhou Electronic ApplianceAcademy of Science: 450 tons weighing platform

| 【Last: Baosteel physical distribution 3*20m electronic motor truck scale 】 【 Next:Shanghai Zekai International Trade: 3*16m80T export type motor truck scale 】【Return】 |
Products that may be interested

